Особенности гостиной с двумя окнами
Поскольку окна в гостиной не всегда располагаются на одной настенной поверхности, встречаются планировки, при которых оконные проемы находятся на смежных стенах, то в этом случае один угол зала будет светлый, а второй неосвещенный. Данную особенность можно переиграть, превратив в преимущество, создав оригинальный интерьер гостиной с двумя окнами. Самые востребованные дизайнерские идеи по дизайну зала с двумя окнами, расположенными на смежных стенах:
Отличный вариантом станет угловой диванчик, расположенный в углу между оконными проемами;
Стильно и элегантно в такой комнате будет смотреться угловая модель камина, которая придаст гостиной тепла и уюта, к тому же на каминной полочке можно будет разместить элементы декора;
Возле окон на обеих настенных поверхностях можно расположить зону для чтения, для этого нужно под каждым окном поставить по одному креслу, а в угловой части установить журнальный столик с настольной лампой;
При этом важно учитывать, что шторы +в гостиную на два окна должны быть одинаковыми. Вместе с тем не стоит в такой комнате оформлять оконные проемы тяжелыми портьерами, потому что они утяжеляют интерьер, идеальным вариантом станет тюль или шелк;
Поскольку в таком помещении есть не только светлый, но и темный угол, то в него можно установить мультимедийное оборудование либо еще один мягкий диван.

Угловое окно в гостиной.
Пространство в гостиной возле углового окна является отличным местом для расположения зоны обеденного стола и приема гостей.

Лучше всего к такому окну подойдет диван идентичной угловой конструкции, это позволит создать единство форм в интерьере гостиной.
Декорировать угловое окно можно шторами с ламбрекенами, что придаст внутреннему убранству гостиной законченный вид и уют.

С угловым окном будет смотреться намного эффектнее гостиная в стиле экологического минимализма.

Разнообразные материалы и техники можно комбинировать в дизайне данных оконных конструкций (например, одна часть окна декорируемая горизонтальными планками, а другая оставляется без украшений).
Виды спаренных окон в квартире
В современных планировках часто можно встретить не только стандартные окна, которые принято располагать по одному на всю комнату, есть масса других, более интересных и оригинальных вариантов:
- Панорамное остекление угловых конструкций выглядит еще более эффектно, чем обычные рамы в пол. Такое остекление дарит помещению простор и наполняет его воздухом, комната как-бы сливается с пейзажем за стеклом. Панорамные стекла пропускают очень много света, но не стоит забывать о том, что и снаружи все так же хорошо видно, как из дома – необходимо подумать о жалюзи или плотных занавесках для больших оконных проемов.
 - Высокие окна с широкими подоконниками будут эффектно смотреться в подростковых спальнях, в кухнях-столовых или в уютных гостиных. Угловые конструкции из двух смежных подоконников позволяют оборудовать полноценный диван или установить просторные полки, столешницу или даже барную стойку вплотную к окну.
 - Часто встречаются фото квартир с двумя окнами, расположенными в один ряд. Такие комнаты выглядят весьма необычно, а обыграть особенность планировки можно по-всякому: зонировать помещение относительно окон или, наоборот, объединить оконное пространство большим зеркалом, камином или стеллажами между проемами.
 - Можно встретить комнаты с двумя окнами, расположенными на смежных стенах, но при этом, разделенными частью стены. Такие проемы хорошо выглядят в рамах с перегородками, выполненными из металла или дерева, можно добавить широкие подоконники или совсем отказаться от них.
 
Процесс принятия решения
Прежде чем начинать ремонт с установкой окон «французской» компоновки, следует тщательно все обдумать. Прежде всего, необходимо сделать панорамное фото вида из вашей квартиры и хорошо просмотреть его. Если ваш балкон выходит во внутренний двор, и из окон открывается «чудесный» вид на гаражи и хозяйственные постройки – задумайтесь, так ли вам нужно панорамное остекление?
Также нелишним будет провести так называемый рендеринг изображения квартиры. Для этого сделанное вами фото необходимо наложить на вид помещения изнутри. Уже на этом этапе вы поймете, что будете видеть через планируемое французское окно.
Однако лучше всего обратиться к специалисту по 3D-моделированию, который поможет вам выяснить, каким образом из него будет падать свет, и как это повлияет на общую концепцию дизайна комнаты. Учтите, что достаточно крупное остекление может сработать как линза, и в результате вы нигде не сможете скрыться от ярких лучей солнца, бьющих в глаза. И конечно же, необходимо подсчитать планируемые затраты – ведь цены на такой вид ремонта достаточно высоки.
Способы и варианты зонирования пространства
Как оформить пространство в одном стиле, но при этом грамотно выделить основные функциональные зоны? Прежде всего, исходите из своих потребностей.
Например, для небольшой семьи, которая собирается вместе только за ужином, скорее всего не нужна большая кухня. А для семьи, которая мало готовит, но много времени проводит в гостиной, предпочтительнее удобная, просторная зона отдыха.
Для большинства семей самое оптимальное решение – распределить место между кухней и гостиной примерно поровну. Для большинства семей самое оптимальное решение – распределить место между кухней и гостиной примерно поровну. Сделать это можно как капитальным способом (снести перегородку), так и временным (поставить диван или обеденную группу). Рассмотрим варианты
Обеденная группа: стол и стулья
Стол со стульями являются переходной зоной между гостиной и областью готовки. Обеденная группа в данном случае устанавливается между гарнитуром и диваном и служит своеобразной границей.
Такая идея зонирования – одна из самых простых, однако в узкой длинной комнате 20 кв м реализовать ее вряд ли получится.
Диван
Один из простых вариантов зонирования.
Способов расположения может быть несколько.
Спинкой к гарнитуру.
Это наиболее оптимальное расположение. Обычно напротив дивана размещают телевизор. Так его будет удобно смотреть и из гостиной, и из кухни.
Диван может располагаться по центру комнаты или ближе к стене. При этом в проходах следует оставлять не менее 70 см свободного пространства.
Диван, перпендикулярный гарнитуру.
Можно сказать, единственный вариант установки в кухне-гостиной 20 кв м с окнами с двух сторон.
Диван напротив гарнитура.
Присмотритесь внимательно к этому варианту, если у вас уже есть какая-либо граница (реальная или визуальная) между кухней и гостиной – барная стойка, перегородка, фальш-стена.
Барная стойка
Стойка может быть отдельностоящей, фиксируемой к стене или совмещенной с островом.
При этом, барная стойка может служить как самостоятельной обеденной зоной (для небольшой семьи), так и дополнительным местом для быстрых перекусов. Если место в кухне-гостиной или студии позволяет, то лучше установить и отдельную полноценную обеденную группу, например, для приема гостей.
Перегородки
Вариантов перегородок огромное разнообразие:
самые распространенные, простые и недорогие – из гипсокартона. Такую фальш-стену можно покрасить, оклеить обоями, отделать декоративной штукатуркой или декоративным кирпичом;
стеклянная перегородка. Красиво, но дорого и опасно (особенно, если в доме есть дети). Бывают наполовину стеклянными, с рамами, вставками или стеклом;
реечная. Изготовление и установку реечной перегородки лучше заказывать в специализированной конторе. Так вы получите просушенное дерево и в будущем сможете не опасаться деформации реек.
Арка
Арка может быть широкой или узкой, отделанной по краям декоративными деталями, минималистичной, аскетичной.
Ширина арочного проема влияет на восприятие пространства как целостного. Чем он шире, тем более единым кажется пространство.
Остров
Остров и полуостров в кухне гостиной позволяют не только разделить объединенное помещение, но и увеличить его функционал.
На острове можно установить мойку или плиту, либо использовать как дополнительный шкафчик. Он может являться одновременно барной стойкой и местом для завтраков или быстрых перекусов.
Недостаток такого зонирования в том, что остров занимает много места. В кухне-студии 20 кв м, например, где кроме гарнитура необходимо установить еще и платяные шкафы, не получится реализовать эту идею.
Разные уровни пола или потолка
Подиум в квартире-студии с одной стороны, съедает место, а с другой — делит общее пространство на функциональные зоны: рабочую и зону отдыха. Под подиумом можно установить выдвижные ящики для хранения и даже выдвижную кровать.
Есть у этой идеи и несколько существенных недостатков:
- во-первых, значительно уменьшится высота потолка, что может стать существенной проблемой для старых квартир, где они и так невысокие,
 - а во-вторых, установка подиума производится на заказ.
 
Панорамные окна в частном доме: что нужно знать
Большие панорамные окна в частном доме — это красиво, стильно, интересно, функционально. Шанс сделать интерьер особенным, роскошным, неповторимым. Возможность любоваться по утрам, попивая кофе, восходом (или вечером — закатом, в зависимости от того, куда именно выходят окна). Наконец, такие конструкции обеспечивают максимальный приток света в помещении, так что вы сможете обходиться без искусственного освещения вплоть до самого заката. Среди особенностей, которыми могут похвастать современные панорамные окна в частном доме, стоит выделить:
- оригинальный внешний вид и уникально большие размеры. Ширина таких светопрозрачных конструкций обычно в несколько раз больше высоты;
 - устойчивость к негативным внешним воздействиям. Стекла в таких конструкциях имеют повышенную прочность и покрыты специальной пленкой — даже если стекло разбить, оно не распадется на отдельные фрагменты, так что можно не опасаться, что вы порежетесь;
 - отличный уровень шумопоглощения. Этой характеристикой могут похвастать современные качественные конструкции известных брендов — выполненные по строгим стандартам.
 
Высокий спрос на панорамные конструкции в пол привел к расширению предложения. Современные производители предлагают несколько способов панорамного остекления:
- обычные. Наиболее простой вариант, который используется чаще всего. Большие размеры панорамных окон в частном доме обеспечивают прекрасный вид, являются органичной частью фасада дома и интерьера;
 - угловые. Использование угловых элементов панорамной системы позволяет создавать другое настроение. Это отличная возможность, если нужно увеличить приток солнечного света в помещение, если за окном находится тенистый участок леса или сад;
 - фальш-окна. Прекрасное решение, если вид за окном не отличается особой привлекательности. Также такие модели используют, если на перепланировку помещения нет ни времени, ни денег. В данном случае речь идет не о стеклах во всю стену, а о подсвеченных панелях, в основу которых вставлено полотно с распечатанным пейзажем — это позволяет создать отличную имитацию уголка природы.
 
Решив приобрести и установить панорамную систему, стоит озаботиться и вопросом выбора материала профиля. Профили современных систем изготавливают из алюминия, древесины, металла, стеклокомпозита и пластика.
Есть и определенные особенности, которые нужно тщательно изучить, прежде чем вы сделаете выбор. Одна из них — невысокие показатели теплоизоляции. Панорамные окна в частном доме зимой не смогут поддерживать в помещении оптимальный микроклимат: по параметру теплоизоляции они явно уступают капитальным стенам, поэтому придется потратиться на дополнительное отопление.
Угловые панорамные окна.
Расположенное от пола до потолка угловое окно, образовывает сплошную стеклянную стену. Это позволяет обычную комнату превратить в застекленную веранду с шикарным видом из окна.
Учитывая тот фактор, что такая стеклянная конструкция имеет большой объем и массу, то для большей безопасности и надежности, окно смоделировать лучше с переплетами. Угловые окна обладают не только прочностью, они еще и выполняют в интерьере декоративную функцию, придают всему помещению особую элегантность и изысканность.
Если панорамное угловое окно разделить поперечной перегородкой, тогда создать можно разноуровневые угловые окна. Они смотрятся достаточно необычно и очень эффектно.

Особенности в интерьере комнат
Грамотный подход к планировке помещения позволит создать уютный и практичный интерьер, несмотря на габариты и другие особенности комнаты.
В детской комнате
Размещение шкафа у окна в детской комнате позволяет обустроить эффективное место для игрушек, школьных принадлежностей и аксессуаров. При размещении мебели необходимо учитывать возраст и рост ребенка, чтобы предоставить ему свободный доступ к полкам и ящикам. Еще следует учитывать критерии безопасности для детей, предусматривающие отсутствие острых углов.
В спальне
Для комнаты отдыха принято использовать исключительно боковые шкафчики с открытыми полками, а в образованной нише под окном следует установить кресло, небольшую софу или изголовье кровати. Если спальня обладает большими габаритами, можно установить в ней шкаф с небольшим диваном или туалетным столиком. Такие элементы станут интересным дополнением для интерьерной планировки.
В гостиной
В зале с вытянутой конфигурацией можно поставить боковой шкаф для книг и других аксессуаров. Он сделает интерьер пропорциональным и освободит пространство от ненужной мебели. Вдоль окна можно поставить чайный столик или диван. Чтобы создать максимальный уют в помещении, над оконным проемом можно установить точечные светильники. Подобное решение позволит сформировать интересный и необычный интерьер.
На кухне
В планировке кухни практикуются разные идеи обрамления зоны вокруг окна. В таком интерьере будут уместными небольшие изделия, которые выглядят стильно и поддерживают трансформацию.
В кабинете
В кабинете можно установить книжный стеллаж или шифоньер с полками, украшенными фоторамками, сувенирами и прочими декоративными изделиями. В такой комнате можно поставить стеллажи, выдвижные ящики и прочие изделия.
Цвет: основные критерии выбора
Окраска шкафа должна гармонировать с остальной мебелью и цветовой гаммой всей комнаты. Этот момент желательно продумать ещё на стадии дизайн-проекта помещения.
При оформлении небольшой комнаты нужно учитывать отдельные нюансы. Мебель светлых оттенков визуально меньше загромождает помещение. Тёмные шкафы выглядят массивнее светлых, а в небольшой комнате вообще создают давящее впечатление.
Можно заказать мебель того же цвета, что и стены комнаты. Такой гарнитур зрительно не дробит стену и смотрится единой непрерывной линией.
Для ванной хороши светлые оттенки — на такой поверхности менее заметны брызги и разводы.
Угловое окно в спальне.
В спальне угловое окно способствует наполнению комнаты естественным светом, что позволяет экономить на приборах освещения. Окно не потребует дополнительного декора в спальне, если ее интерьер выполнен в стиле минимализма.

Смотрятся очень необычно объемные рамы, которые выкрашены в контрастный цвет. Креативный акцент в спальне позволяет сделать такой вариант декора из углового окна.
Под цвет стен спальни можно подобрать широкие рамы, для панорамного углового остекления комнаты.

Чтобы обеспечить уютную обстановку в малогабаритной комнате чердачного типа, рекомендуется разместить угловое место для отдыха под узким продолговатым окном.

Вопрос-ответ
При оформлении гостиной с двумя окнами на смежных стенах необходимо учитывать естественное освещение, которое делает один угол более светлым, а другой притемненным. Поэтому лучше всего стены выкрасить светлой краской. Также при такой планировке удобно использовать диван угловой формы и небольшой журнальный столик.
При оформлении окон в гостиной важно учитывать то, что шторы на обоих окнах должны быть сшиты из одного материала и одного цвета, а также должны быть в той же цветовой палитре, что и другой текстиль. Однако если гостиная оформлена в современной стилистике, то шторы на окнах могут быть с модным сейчас рисунком 3-d

Ребята, мы вкладываем душу в AdMe.ru. Cпасибо за то, что открываете эту красоту. Спасибо за вдохновение и мурашки. Присоединяйтесь к нам в Facebook и ВКонтакте
При ремонте мы ориентируемся на собственные ощущения, не зная основ дизайна, поэтому так часто результат не оправдывает ожидания.
AdMe.ru собрал самые распространенные ошибки, которые допускаются при оформлении интерьера гостиной.
В вашей гостиной только верхнее освещение

Освещение создает атмосферу и должно учитывать ваше настроение, поэтому гостиная не может обойтись одной люстрой в центре комнаты. Создайте собственную систему освещения (настольные лампы, бра, торшеры, подсветка потолка и т. д.).
Отсутствие или неправильный размер ковра

Маленькие ковры приносят дисбаланс в комнату, следует подбирать ковер правильного размера для вашей гостиной. Большой ковер обеспечит визуальное расширение пространства, и интерьер приобретет законченный вид.
Планировка кухни
Стандартные варианты дизайна кухни с панорамным окном:
П-образная расстановка кухонного гарнитура может использоваться для дизайна помещений небольших площадей, но чаще используется для просторных кухонь.
Рабочая зона хорошо освещена естественным светом. Можно сэкономить на электроэнергии, и глаза будут меньше уставатьИсточник interiorson.com
Будет ли удобной подобная планировка? Положение немного спасают два крана, размещенные на разных сторонах гарнитураИсточник karmatrendz.files.wordpress.com
Линейная. Кухонный гарнитур размещается вдоль одной стены. Такая планировка нередко используется в просторных или узких помещениях.
Линейная планировкаИсточник amazonaws.com
Угловая. Рабочую зону, как правило, помещают рядом с окном.
Дизайн в светлых тонахИсточник happymodern.ru
Островная планировка. В просторных помещениях рабочий стол можно размещать в центре отдельно от остального гарнитура.
Удобный «островок» для любителей готовитьИсточник coolhouses.ru
Возможности меблировки обеденной зоны ограничивает ее площадь. Однако для оформления интерьера небольших помещений с панорамными окнами тоже можно найти интересные варианты.
Кофейная кухня с мини-баромИсточник cdn.arxip.com
Просторные площади позволяют реализовать множество интересных решений. Можно дополнить дизайн помещения с панорамными окнами большим аквариумом, создать мягкий уголок, использовать вместо обычных стульев мягкие пуфы.
Экспериментируем с барной стойкойИсточник interiorson.com
Кухня с закруглениемИсточник i.pinimg.com
В гостиной
Г-образное пространство является идеальным местом для использования аналогичного дивана. Белая мебель как нельзя лучше вписывается в этот интерьер и заманчиво предлагает побездельничать на подушках, наслаждаясь открывающимся из окна прекрасным видом.
Диваны очень большие по размеру, поэтому вы можете заменить их парой кресел, которые создадут прекрасное место для бесед.
Не забудьте добавить к ним подушку и одеяло для большего комфорта. Ниже мы видим преимущество уголка для отдыха, который включает стол и лампу. Если место отдыха красивое, это еще не значит, что оно уступает по функциональности.
Два стильных стула – это все что нужно. Особенно, если пара подушек делает их удобными для отдыха. Один из способов украсить зону с единственным стулом – это подвесить над ним красивый светильник
В гостиной Эймс такой союз является очень гармоничным и привлекает внимание к живописному уголку




Говоря о стульях Эймс, не стесняйтесь использовать кусочек в углу у окна, даже если он будет демонстрировать только один предмет. Вид на море является идеальным фоном для низкого изогнутого стула, который приветствует посетителей своей белой подушкой для поддержания головы.
Чтобы сделать помещение поистине райским уголком, можно поместить туда кресло и лампу, а по краям удобные полки для хранения мелочей или книжный шкаф. Многие угловые окна позволяют рационально использовать место перед ними.
В комнате, представленной ниже, подушки добавляют комфорт, в то время как ящики для хранения багажа создают функциональность.



Угловые окна в интерьере частного дома
Угловые конструкции больше подойдут для таких стилей интерьера как минимализм, скандинавский, современный. Изящные арочные или прямые переплетения, подходящие к стилю прованс можно задать установкой горбыльков на пластиковом окне.
Оформлять окна можно с помощью различных штор и занавесок:
- часто можно встретить жалюзи небольшого размера или шторы с тонкими занавесками. Такое оформление обычно выбирают для создания небольшой тени. Желательно использовать светлые занавески, так как они не будут полностью преграждать путь световым лучам;
 - красиво дополняет интерьер дома вариант с ламбрекеном небольшой длины. Его обычно дополняют маленькой шторой в области угла;
 - для достижения эффекта легкости и воздушности используют светлый тюль. Он не останавливает свет, оставляя возможность естественного освещение комнаты;
 - если нужно, чтобы была возможность уменьшения количества света, то можно использовать рулонные шторы. Такой вариант позволит регулировать уровень освещения в пространстве.
 
Такие архитектурные нововведения открывают широкий выбор деталей для оформления интерьера. Есть много вариантов преображения комнат, что позволяет выбрать индивидуальный стиль и сделать свой дом уникальным.
Виды занавесок
Существует множество разновидностей занавесов. Это римские и австрийские, «кафе» и жалюзи, японские и французские, китайские и веревочные.
Римские
Изделие состоит из одного цельного полотна, размерами совпадающего с формой, габаритами оконного проема. При поднятии (открытии) штора собирается «гармошкой». Драпировка делается темной, реже прозрачной либо полупрозрачной, украшенной яркими, контрастными узорами. Главная особенность – при наличии нескольких окон в одной комнатке, объединить их общей римской занавеской не получится.
Можно подобрать вариант практически под любой стиль оформления зала.
Итальянские
Такие занавески оформляются специальными шнурами, стягиваемыми в диагональном направлении. С изнаночной стороны располагаются колечки – туда также продевается шнур, на котором крепится все изделие. Отличительная особенность – верхний край шторы укладывается ровными крупными складками. Драпировки делаются однослойными, многослойными, частично перекрывающими друг друга, пересекающимися.
Благодаря множеству способов драпировки можно подобрать модель практически под любой дизайн зала.
Японские
Панельные или японские варианты больше напоминают ширму. Это система ровных драпировок на многослойных карнизах (используется два-пять слоев). Материал изготовления обычно – натуральная ткань, какие-либо складки на ней отсутствуют. При размещении на двух окнах одновременно, не обязательно располагать слои симметрично. Задача подобных занавесов не перекрывать полностью, а слегка рассеивать уличный свет
Ткани могут комбинироваться по цвету и текстуре.
Совет: подобный декор подходит как для восточных, так и для минималистичных интерьеров.
Китайские
Занавески китайского типа отлично передают колорит востока. Подходящий материал изготовления – светлые полупрозрачные ткани, максимально соответствующие габаритам окна. Особенность конструкции – в «собранном» виде она представляет собой рулон ткани, удерживаемый одной-двумя лентами, проходящими посредине.
Они изготавливаются из ткани, натянутой на горизонтальные перекладины.
Австрийские
Подобные занавесы сочетают пышные объемные складки и механизм, как у римских занавесов. Складочки образуются при стягивании вверх и в стороны, материал изготовления предпочитается легкий, воздушный, полупрозрачный. Рекомендуемая длина – немного ниже подоконника. Австрийские занавески обычно используются в классических интерьерах.
Австрийские шторы представляют собой своеобразный симбиоз французских и римских штор.
Французские
Такие роскошные шторы представляют собой отдельные секции, где каждая по всей длине оформляется пышными, «спадающими» вниз складками. Ткани на французскую драпировку уходит в разы больше, чем на обычную. Многочисленные фестоны выполняются из дорогих блестящих материалов (тюль, муар, муслин, шелк), размещаются обычно на больших, панорамных окнах – на маленьких теряют свою привлекательность.
Французские шторы представляют собой объемную композицию, состоящую из нескольких элементов.
Жалюзи
Бамбуковые жалюзи обладают антистатическими свойствами, не собирают пыль, что очень удобно, если в квартире живут дети и аллергики. Изделие отлично вписывается в экологические, восточные, «деревенские» интерьеры. Часто жалюзи сочетают с текстильными драпировками – как плотными, так и полупрозрачными.
Это хороший вариант, если кто-то из домочадцев страдает от аллергии на пыль.
Нитяные
Веревочные занавески не способны блокировать свет, потому используются лишь в качестве декорации либо вместо тюля, в сочетании с более плотными гардинами. Выполняются они из тонких нитей одинаковой толщины, часто делаются блестящими, с плавными цветовыми градиентами, используются на больших и малых окнах.
Шторы на два окна можно сделать однотонными либо подобрать комбинацию из нескольких оттенков.
Декор окна гостиной относительно пола
Пол в разных интерьерах комнаты может быть самым различным, но именно он может повлиять на то, как именно расположены занавески.

Если окна большие, то рекомендуется выбирать такие шторы, которые достают до самого пола
Шторы могут располагаться:
- Длиной до пола;
 - Приподнятые на несколько сантиметров;
 - С воланами на полу.
 
Декор частного дома или квартиры ничем не отличается и в первую очередь зависит исключительно от предпочтений владельцев недвижимости, а также от первоначального интерьера комнаты
Крайне важно, чтобы такой немаловажный элемент способствовал сохранению изящности и эстетичности помещения. Независимо от того, какой длины будут шторы, подготавливать полотно нужно по уровню помещения, так как очень редко можно встретить залы с идеально ровными стенами, потолками и полами, ну разве что в загородном доме
Световые проемы на противоположных стенах
Вариант «свет сквозь здание» встречается при постройке загородных домов современного стиля с элементами кубизма или расположении гостевой зоны на втором уровне особняка с устройством остекления мансардного типа. При такой планировке противоположная от входа торцевая стена образует задник:
- для кино-или телекомплекса;
 - коллекции абстрактных картин;
 - варианта барной стойки.
 
Середина комнаты отдана под диванные группы для отдыха гостей и столики (журнальные, придиванные), а переплеты наклонных рам служат графичными штрихами, оформляющими пейзаж за окном.
Оригинальное решение проекта гостиной на первом этаже — использование французских окон или сдвижных прозрачных конструкций (тип дверей-купе). Подобные приемы позволят распахнуть окна на террасы, окружающие помещение с двух сторон, выйти на ступени, «впустить» внутрь сад и небо.
Оригинальное угловое окно в интерьере частного дома на 30 фото
В современной архитектуре имеется множество интересных идей для остекления частных домов, которые прибавляют вашему жилищу стиля и уникальности. Угловое окно — это набирающее популярность решение, которое позволяет на малом участке стены получить бо́льшую площадь остекления. Благодаря этой особенности, такой вариант окна на треть увеличивает количество естественного освещения, по сравнению с классическими окнами. В сегодняшней статье мы разберемся, какие бывают виды угловых окон, а также расскажем где лучше всего их устанавливать. Смотрите подборку красивых угловых окон в интерьере на фото внутри статьи.
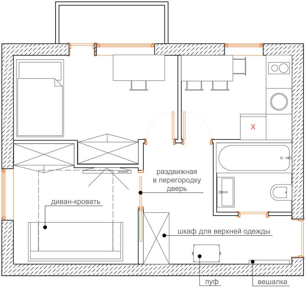
Вариант №3: квартирка для семьи с маленьким ребёнком
Цели
Оборудовать изолированную детскую для малыша (практичный стол, постель, шкаф), отдельный родительский будуар и комфортную гостиную, оснастить санузел сантехникой и бытовыми приборами.
Решение
Зонирование выполнено с помощью стеллажей и стен. В главном будуаре расположен диван-кровать (который можно складывать во время прихода гостей), а дверной проём был оснащён полотном с раздвижной конструкцией. Планировка кухни и ванной комнаты оставлены без изменений.
Достоинства
Изолированная детская и родительская спальня; уютный зал для приёма гостей; оборудован вместительный гардероб.
Недостатки
Нет полноценной постели в спальне для взрослых; большое количество перегородок, загромождающих помещение.


Попробуйте использовать одну из этих бесподобных и практичных вариаций перепланировки для преображения собственного дома мечты. В результате вы сможете создать комфортный, красивый и эстетичный интерьер, поражающий своей функциональностью.





























